Porovnanie verzií výkresov
Nahrali ste novú verziu výkresu a chcete vidieť aké sú zmeny ? Staršie verzie výkresu už nie je možné zobraziť , ale porovnaním verzií výkresu môžete jednoducho a rýchlo zistiť aké zmeny boli vykonané.

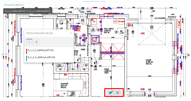
V nástrojovej lište kliknite na funkciu Porovnať verzie a zobrazí sa panel s nahranými verziami výkresu. Z archívu si vyberiete dve verzie, ktoré chcete porovnať.

Výsledok porovnania sa zobrazí na novej záložke Porovnanie výkresov.
Porovnávané výkresy si môžete zobraziť a porovnávať:

Nad sebou

Vedľa seba
Vhodné zobrazenie si vyberiete kliknutím v dolnej lište.

Pre lepšie porovnanie môžete výkresy tiež posúvať po kliknutí na ikonku v paneli Porovnávané verzie.

alebo celý panel zavrieť
